private office  renovation

Forty-Fort PA, 2015

 

 

client  property owner moving within his complex to unrented space previously utilized as a receiving office for warehouse deliveries

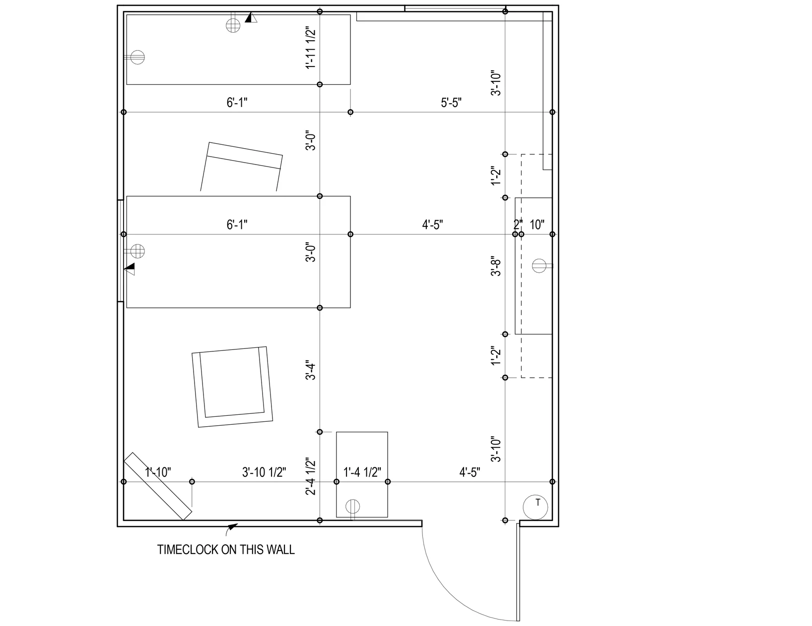
project  gut renovation of a utilitarian space primarily comprised of vinyl wall paneling, laminate floor, and ACT with lay-in T8 fluorescent fixtures; reduced available wall surface necessitated careful inventory and planning for existing possessions in renovated space

services program verification, documentation of existing conditions, demolition plans, construction drawings, lighting and electrical coordination, color and material specifications

 
 
 
 

picture wall planning and installation

office_wall.jpg
 
 
 
 

drawings

office_fp01.jpg
 
 
office_fp02.jpg
 
office_rcp.jpg
 
office_wall01.jpg
 
office_wall02.jpg
 
office_wall03.jpg
 
office_wall04.jpg